This wonderfully unique property is a horse lovers dream! This versatile four/five bedroom detached house is conveniently situated in the pretty village of Charlton, close to Shepperton, Sunbury and Ashford. The generous accommodation consists of modern kitchen with utility area, lounge with bay window, lovely dining area, with sky light and bifold doors leading to the garden, office/bedroom 4 with bay window and a tiled cloakroom with sink and WC. Upstairs there are three double bedrooms (master bedroom with fitted wardrobes) and a fully tiled family bathroom which also has a separate shower cubicle. On the second floor there is a large loft room with Velux windows and ample storage space. With approximately 0.7 acres of land, the property has fantastic equine facilities including stables, tack room, feed room, an all weather manege and two separate annexes. There is extensive parking for cars and horse boxes to the front and rear of the property. Transport l...
Read more
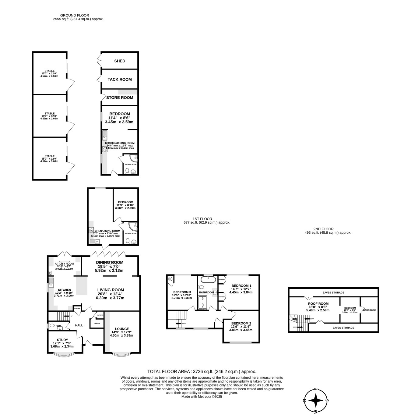
This wonderfully unique property is a horse lovers dream! This versatile four/five bedroom detached house is conveniently situated in the pretty village of Charlton, close to Shepperton, Sunbury and Ashford. The generous accommodation consists of modern kitchen with utility area, lounge with bay window, lovely dining area, with sky light and bifold doors leading to the garden, office/bedroom 4 with bay window and a tiled cloakroom with sink and WC. Upstairs there are three double bedrooms (master bedroom with fitted wardrobes) and a fully tiled family bathroom which also has a separate shower cubicle. On the second floor there is a large loft room with Velux windows and ample storage space. With approximately 0.7 acres of land, the property has fantastic equine facilities including stables, tack room, feed room, an all weather manege and two separate annexes. There is extensive parking for cars and horse boxes to the front and rear of the property. Transport links are excellent with M3, M25 and A316 all accessible close by as well as Heathrow and main line rail services to Waterloo. This outstanding property must be viewed to fully appreciate its potential. Freehold. Council Tax Band F. EPC Rating D.
Entrance Hall
Spacious entrance hall with two storage cupboards.
Study
3.68m x 2.34m (12' 1" x 7' 8") Front aspect with bay window.
Cloakroom
WC and hand basin
Kitchen
3.71m x 3.00m (12' 2" x 9' 10") Modern kitchen with a range of base and eye units, island and separate utilty area. Solid wood worktops.
Utility Room
3.00m x 2.13m (9' 10" x 7' 0") Space for laundry appliances, boiler, French door leading to garden.
Living Room
5.92m x 2.13m (19' 5" x 7' 0") open plan to kitchen. Archway leading to Dining Room.
Dining Room
5.92m x 2.13m (19' 5" x 7' 0") Sky light and bifold doors leading to garden.
Lounge
6.30m x 3.77m (20' 8" x 12' 4") Double doors, leading to Living Room and Kitchen. Front aspect bay window.
Bedroom 1
4.45m x 3.84m (14' 7" x 12' 7") Fitted Wardrobes.
Bedroom 2
3.88m x 3.45m (12' 9" x 11' 4") Front aspect with eves storage.
Bedroom 3
3.78m x 3.30m (12' 5" x 10' 10") Rear facing with cupboard.
Bathroom
Modern fully tiled bathroom with bath, sink and separate shower cubicle.
Loft Room
5.49m x 2.59m (18' 0" x 8' 6") Several Velux windows let the light flood into this clever area which contains built in pod beds and built in storage space. Bedroom 3.10m x 2.13m (10.'2" x 7.0")
Self Contained Annexe 1
Annexe consisting of Kitchen/Diner, open plan lounge, double bedroom and a separate shower room with sink and WC.
Self Contained Annexe 2
Annexe consisting of Kitchen/Diner, lounge, double bedroom and shower room. Featuring exposed wooden beams.
Stables
4.57m x 3.66m (15' 0" x 12' 0") Three stables.
Outbuildings
Store Room, Tack Room, Shed.
Manege
40m x 22m (131' 3" x 72' 2")
Read less