School Lane, Shepperton, TW17

Offers in excess of £375,000

2 Bedroom Terraced House

Ref: 5093110_29697532

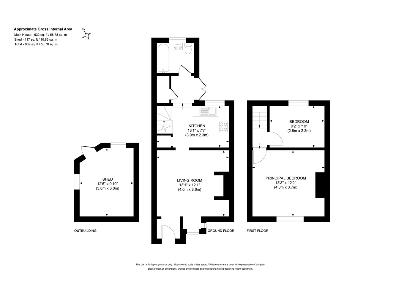
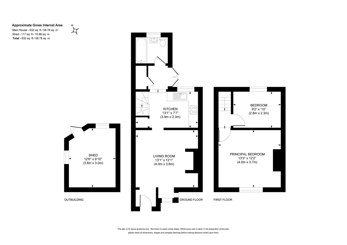
Nestled in a peaceful yet highly convenient location, this charming two-bedroom character cottage is situated just moments from Shepperton High Street and the River Thames. Full of warmth and period appeal, this delightful home features an impressive inglenook fireplace with a multi-fuel burner, creating a wonderful focal point and a cosy atmosphere, the perfect place to unwind. The accommodation offers a comfortable living room, a well-appointed kitchen, and a bathroom on the ground floor, with two bedrooms on the first floor. Outside, the property enjoys both front and rear gardens, providing attractive outdoor spaces for relaxing or entertaining, as well as the rare benefit of off-street parking. Superbly located, the cottage is only a short stroll from Shepperton’s shops, cafés, and restaurants, while the riverside is also nearby, offering scenic walks and a tranquil village setting. Shepperton mainline station provides direct access to London...

Read more

Important Information

  • This is a Freehold property.
Private Parking Incredible Inglenook Fireplace
Front & Rear Gardens Large Master Bedroom
Character Cottage Close To River Thames
Gas Central Heating An Ideal First Time Buy
Close to High Street & station Catchment area for St Nicholas & Thamesmead School's

epc

Bazely & Co

Bazely & Co

105 High Street

Shepperton

Middlesex

TW17 9BL

United Kingdom

Tel: 01932 221252
E-Mail: sales@bazelyandco.co.uk

Arrange a Viewing Videoette Brochure EPC Virtual Tour Printable Details Request a Phone Call Request Details E-Mail Agent
Book a Property Valuation Update Cookies Preferences