Bravington Close, Shepperton, TW17

Guide Price £375,000

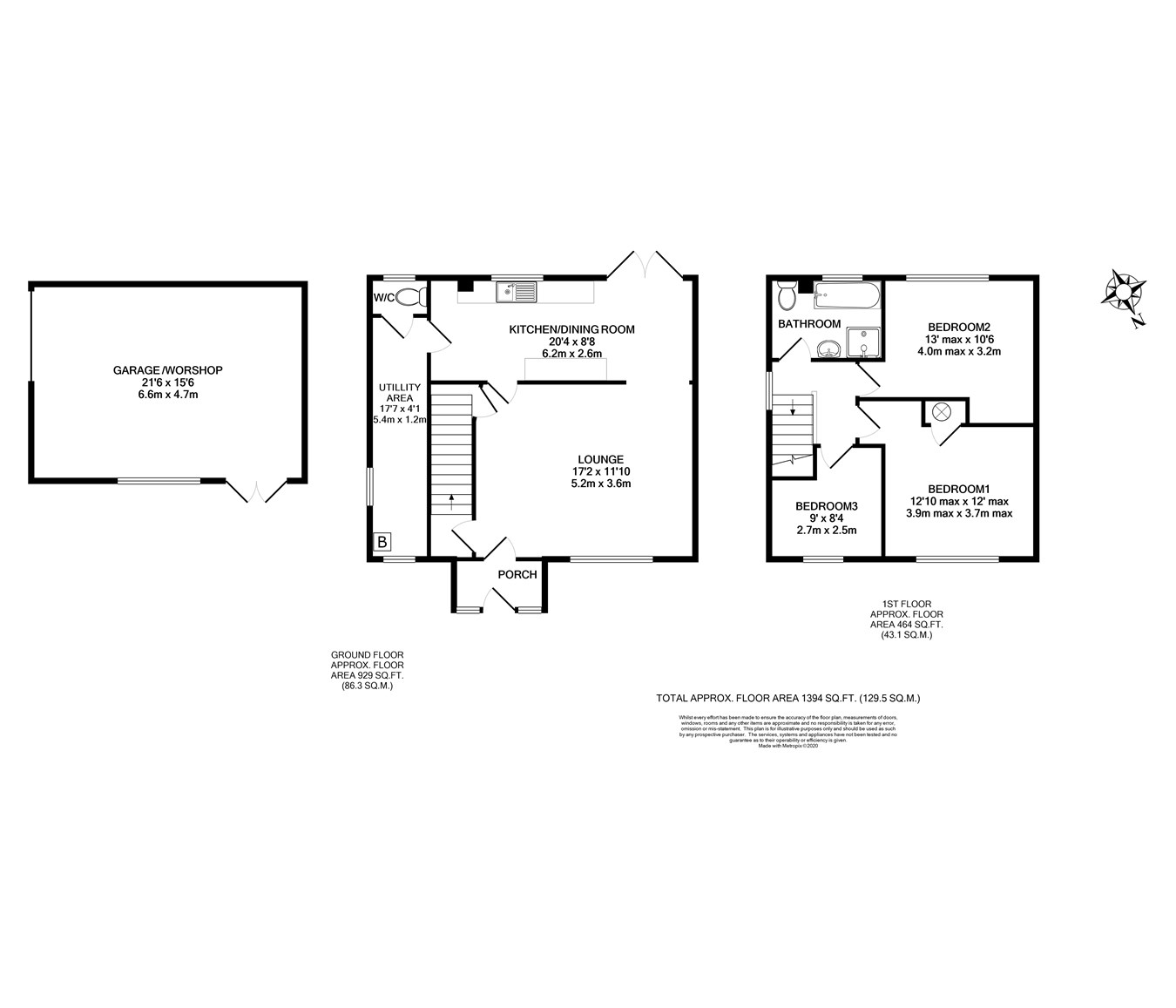
3 Bedroom Semi-Detached House

Ref: 5093110_29861382

A very well presented three bedroom semi-detached house with great potential to extend to the side and rear (subject to planning). The property is located in a cul-de-sac within 1 mile of the High Street and railway station. The construction of the house is BISF (British Iron and Steel Federation) and we would recommend that any interested party researches the construction before registering their interest. The property offers a lounge, good sized re-fitted kitchen/dining room, a utility and a cloakroom on the ground floor and three bedrooms and a re-fitted bathroom upstairs. Outside there is a super 50' south facing rear garden and a double detached garage to the rear. The property also benefits from double glazing and gas radiator heating. EPC Rating D.

Read more

Important Information

  • This is a Freehold property.
Modern Kitchen Within 1 Mile of High Street
Potential To Extend (STPP) Modern Bathroom
South Facing Rear Garden Detached Double Garage To Rear
Three Bedrooms Double Glazed

Bazely & Co

Bazely & Co

105 High Street

Shepperton

Middlesex

TW17 9BL

United Kingdom

Tel: 01932 221252
E-Mail: sales@bazelyandco.co.uk

Arrange a Viewing Videoette Brochure EPC Printable Details Request a Phone Call Request Details E-Mail Agent
Book a Property Valuation Update Cookies Preferences