Bazely and Co are delighted to bring to the market this rarely available 4/5 bedroom end of terrace house in Shepperton. Located near Shepperton Studios, this property would make an ideal investment or project. Downstairs you will find a bedroom which could be used as a reception room, kitchen/diner, shower room with utility area, separate WC, and large hallway with two storage cupboards. Upstairs there are four bedrooms and a family bathroom. There is also a large loft which is part boarded. Outside there is a secluded rear garden and to the front there is a driveway for two/three vehicles, with additional parking for visitors in the surrounding roads. It is adjacent to the newly developed Studios Walk and within the catchment area of Littleton and Saxon primary schools. The A316 into London and the M3 towards the south coast are within close proximity. Freehold. EPC Rating C. Council Tax Band D.
Read more
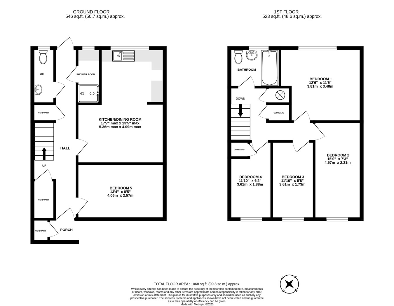
Bazely and Co are delighted to bring to the market this rarely available 4/5 bedroom end of terrace house in Shepperton. Located near Shepperton Studios, this property would make an ideal investment or project. Downstairs you will find a bedroom which could be used as a reception room, kitchen/diner, shower room with utility area, separate WC, and large hallway with two storage cupboards. Upstairs there are four bedrooms and a family bathroom. There is also a large loft which is part boarded. Outside there is a secluded rear garden and to the front there is a driveway for two/three vehicles, with additional parking for visitors in the surrounding roads. It is adjacent to the newly developed Studios Walk and within the catchment area of Littleton and Saxon primary schools. The A316 into London and the M3 towards the south coast are within close proximity. Freehold. EPC Rating C. Council Tax Band D.
Bazely and Co are delighted to bring to the market this rarely available 4/5 bedroom end of terrace house in Shepperton. Located near Shepperton Studios, this property would make an ideal investment or project. Downstairs you will find a bedroom which could be used as a reception room, kitchen/diner, shower room with utility area, separate WC and large hallway with two storage cupboards. Upstairs there are four bedrooms and a family bathroom. There is also a large loft which is part boarded. Outside there is a secluded rear garden and to the front there is a driveway for two/three vehicles with additional parking for visitors in the surrounding roads. It is adjacent to the newly developed Studios Walk and within the catchment area of Littleton and Saxon primary schools. The A316 into London and the M3 towards the south coast are within close proximity. Freehold. EPC Rating C. Council Tax Band D.
Entrance Hall
Hallway with three storage cupboards.
Cloakroom
Shower Room
Plumbing for laundry appliances.
Kitchen/Dining Room
5.36m x 4.09m (17' 7" x 13' 5")
Bedroom Five
4.06m x 2.57m (13' 4" x 8' 5")
Bedroom One
3.81m x 3.48m (12' 6" x 11' 5")
Bedroom Two
4.57m x 2.21m (15' 0" x 7' 3")
Bedroom Three
3.61m x 1.73m (11' 10" x 5' 8")
Bedroom Four
3.61m x 1.88m (11' 10" x 6' 2")
Bathroom
Landing
Storage Cupboard and airing cupboard with hot water tank.
Loft
Part boarded, part insulated, light and power.
Garden
Laid to lawn, patio area and storage shed.
Read less
Important Information
- This is a Freehold property.
| End of Terrace House |
Quiet Cul De Sac Location |
| Close to Shepperton Studios |
Driveway |
| Secluded Rear Garden |
Potential to Modernise and Extend (STPP) |
| Two Bathrooms |
Freehold, EPC Rating C |